Introduction
qui architecte mandataire : Archipel Zéro (Frédéric Denise, Pauline Rime) | architecte associé : Lao Scop (Boris Julliard, Céline Tcherkassky)
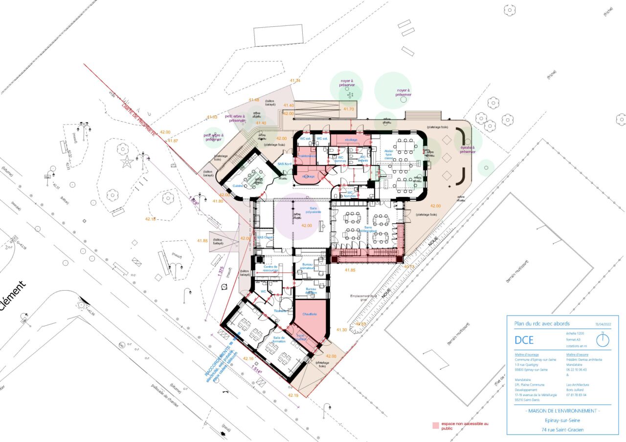
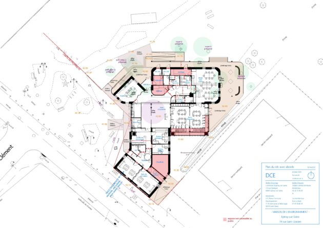
quoi Maison de la Réserve écologique : pavillon d’accueil pédagogique et logement du gardien | 720 m² sdp
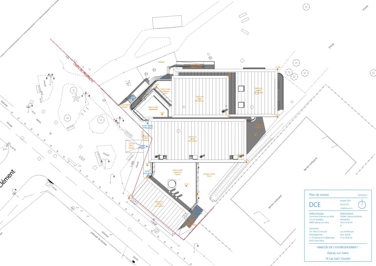
où 70 rue de Saint-Gratien, Epinay-sur-Seine
quand Concours : avril 2021 | Consultation des entreprises : avril 2022 | Chantier : mai 2023 - mai 2025
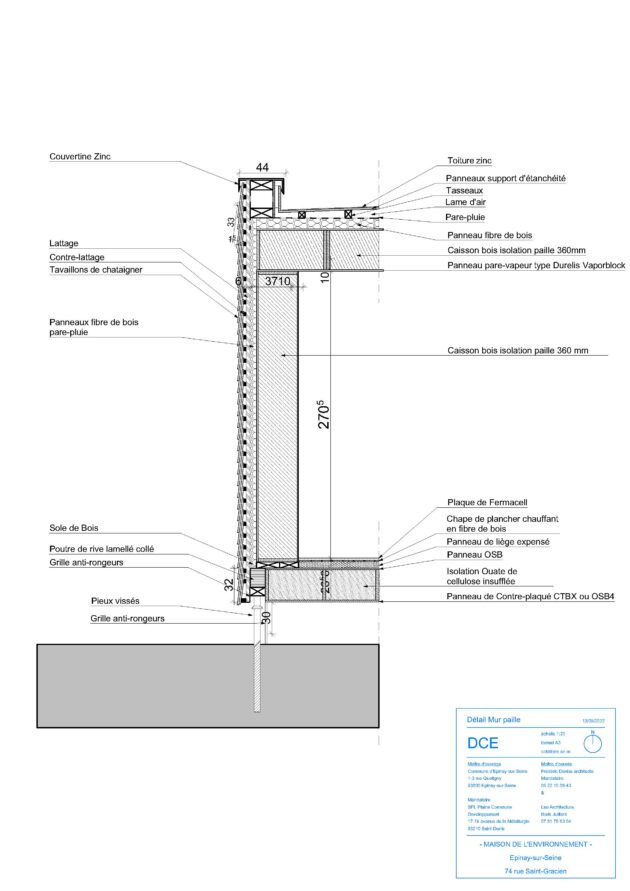
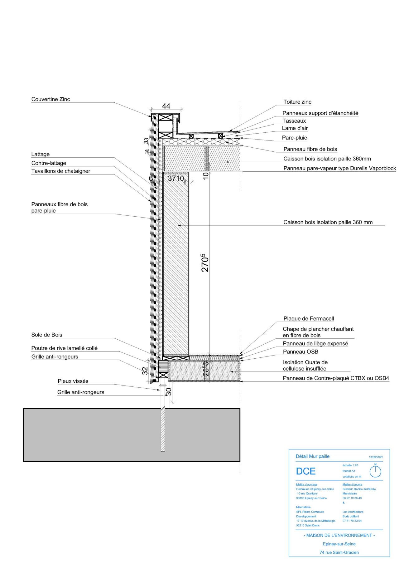
comment Fondation : 109 pieux vissés | Structure : bois massif (210m3) | Isolation des murs : botte de paille francilienne (110m3) | Isolation du plancher et du toit : ouate de cellulose (387m3) | Enduit avec de la terre d’excavation du Grand Paris (8m3) | Bardage : tavaillon de châtaigner | Mur-trombe : brique de terre compressée (25m3) | Fenêtres de réemploi mur-trombe, double-façade inter-climatique, cheminée solaire : Plaine commune, Bâtiment Dior-Vernet, Ensa Normandie | Autres réemplois : radiateur en fonte (Prêtresse), céramique (Puteaux), éléments électriques (Réavie), mobilier (stock municipal), caillebottis, garde-corps, platelage de la terrasse (Suresnes), parquets (Puteaux) | Ventilation naturelle avec récupération de chaleur | Marché public en lots séparés
pour qui les Spinacien·nes, les scolaires et les associations | MOA : Ville d’Epinay-sur-Seine | AMO : Plaine Commune Développement (Yasmina Mouzaoui)
avec qui BET fluides, économie : Quatorze IG | BET environnemental : EODD | BET Structure : LEICHT France | BET réemploi : Seconde Main Architecture (Clémence Bondon) | Coordinateur Sécurité et Protection de la Santé : SPSC | Contrôleur Technique : APAVE (Laurent Dandres)
par qui Plateformes du réemploi : PERMAC, Cycle de Ville, Réavie, Tricycle, Cycle Up | Pieux vissés : Aedificantes | Charpente : Herminette | Menuiseries extérieures et intérieurs de réemploi, paille et terre crue : Depuis 1920 | Bardage et tavaillons bois : Atelier 1702 | Menuiseries extérieures : Moreau | Métallerie : SCMMSC | Cloison-doublage : AF Rénovation | Electricité : SGEA | Plomberie chauffage ventilation : Celsio
combien Budget : 2,75 M€ (y compris mobilier) | Emission de CO² liée à la construction : 149 t CO²e (245 kgCO²e/m²) | CO² séquestré : 210 t | CO² préservé par le réemploi : 49 t | Taux de réemploi et recyclage : 36% de la masse du bâtiment | Taux de matériaux naturels : 51 % de la masse du bâtiment
Ménager
Martin Paquot | Construire un bâtiment implique une consommation de sol et de ressources. Comment alors en implanter un, de manière cohérente, en lisière d’une réserve écologique où toute une faune et flore s’épanouit déjà ? Quelles relations au dehors, aux éléments et au vivant entretient votre architecture ?
Frédéric Denise | L’objet du concours était de construire le pavillon d’accueil de la Réserve Ecologique d’Epinay-sur-Seine, lieu extraordinaire où l’humain n’intervient pas, pour laisser la nature reprendre ses droits ; un lieu où on ne plante pas, on ne taille pas ; on écoute, on observe, on s’efface, on apprend. La réserve écologique a été conçue par les architectes-paysagistes de Coloco, suivant le principe de Clément Gilles de « ménager plutôt qu’aménager ». Alors comment construire un bâtiment dans un lieu où tout nous invite à ne pas construire ?! C’est cette contradiction apparente qui a guidé tout le projet.
Ce dilemme nous a permis d’exprimer de la façon la plus radicale notre recherche de la juste empreinte : construire le moins et le mieux possible, avec des matériaux de proximité, de façon réversible, bioclimatique, low-tech et participative. Une architecture naturelle, construite avec et pour le vivant.
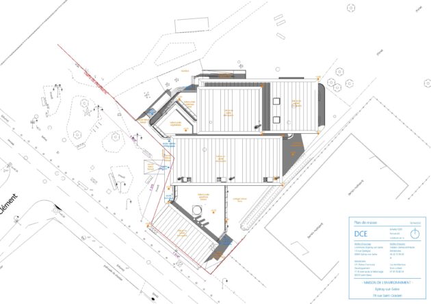
Au-delà des slogans, la démarche a été très pragmatique, à commencer par l’implantation des constructions, que nous avons déterminée pour impacter le moins possible la faune et la flore présentes, et plus particulièrement les arbres. L’emprise d’environ 600 m2 a été localisée en marge de la réserve, entre le parvis et un terrain multisport, sur une zone en friche, peu plantée, antérieurement occupée par deux pavillons, dont l’un des jardins était un parking, au sol pollué… Le bâtiment a une forme complexe. Il est découpé en plusieurs volumes, s’adaptant à la position des arbres présents, afin de les préserver. La volumétrie s’articule selon plusieurs directions : les limites de la Réserve, l’alignement de la rue et la course du soleil. Un beau châtaigner a malheureusement dû être sacrifié. Il a toutefois inspiré le bâtiment, totalement revêtu de tavaillons de châtaigner.

Fonder
Les concepteur.rices engagé.es dans l’écoconstruction se focalisent généralement sur la superstructure et ne considèrent que trop rarement encore les fondations du bâtiment. Ce n’est pas votre cas ici. Qu’avez-vous fait ? et qu’est-ce que cela vous a permis de faire ?
Frédéric Denise | Notre recherche du moindre impact a guidé le choix des fondations vers des pieux vissés, afin d’éviter totalement le béton et préserver les racines des arbres : on visse les pieux entre les racines sans les abîmer. Les pieux vissés sont adaptés à des charges d’à peu près 10 tonnes, ce qui n’est pas si mal. Au-delà, on peut doubler voire tripler leur nombre. Un bâtiment de 2 ou 3 niveaux peut toujours être fondé sur pieux vissés, mais pas en béton car il sera trop lourd. Peu importe, on ne veut plus de béton !
Le bâtiment ainsi perché sur des pilotis de faible hauteur sert d’habitats aux animaux, les hérissons sous le bâtiment, les oiseaux et les chauves-souris dans des nichoirs intégrés sous les auvents. Cette technique des pieux vissés permet également une réversibilité totale de la construction. Ainsi nous n’avons fait qu’emprunter l’emplacement à la Réserve, qui pourra être restitué en fin de vie, et tous les matériaux trouveront une 2e vie et une 3e vie ailleurs.
Par contre, ce choix nous a aussi joué des tours. Du fait de l’absence totale de béton il n’y avait pas d’entreprise de gros-œuvre. Or c’est habituellement l’entreprise principale qui s’occupe des installations de chantiers, de l’implantation, des réseaux enterrés sous le bâtiment, gère le compte prorata... Ici c’est le charpentier, Herminette, qui a dû gérer tout çà. C’était pour lui la première fois, et cela a généré quelques difficultés. Il n’avait pas l’habitude, et nous non plus. Nous n’avions pas anticipé la nouveauté, il y a donc eu quelques loupés. C’est une bonne leçon qui s’est malheureusement faite au détriment des délais.
Boris Juillard | Les fondations en pieux vissés ont également permis de préserver une continuité écologique au niveau du sol, la terre végétale est laissée en place, avec toute la biomasse qu'elle abrite. Enfin cette surface reste perméable, même si elle est recouverte par le bâtiment, et favorise l'infiltration des eaux de pluie.
Réemployer
Outre le bois (structure), la paille (isolation des murs), la ouate de cellulose (isolation du plancher et du toit) et la terre (enduit intérieur et murs de refend), vous avez largement eu recours au réemploi : depuis les chemins de câble aux fenêtres en passant par les éviers. Comment dégotte-t-on localement et dans la temporalité du chantier une telle diversité et une telle quantité de réemploi ? La fourniture est-elle à la charge de la maîtrise d’ouvrage, de la maîtrise d’œuvre ou de l’entreprise ? Est-ce pour des raisons d’assurance que le réemploi est limité à des éléments de second œuvre ?
Frédéric Denise | La démarche de réemploi a été exemplaire, dans la mesure où elle a concerné tout le monde. Ce fut un véritable chantier pilote pour tous les acteurs : la maîtrise d’ouvrage, la maîtrise d’œuvre, les entreprises, tout le monde a participé. La Ville d’Epinay-sur-Seine a elle-même participé au glanage. Nous avions également un BET réemploi avec Clémence Bondon (Seconde Main Architecture) qui a sécurisé les pièces écrites et édicté les règles du CCTP. Nous nous sommes mis en veille en cours d’étude, et j’ai activé tout mon réseau réemploi de la Normandie à l’Ile-de-France pour trouver le plus de matériaux possibles compatibles avec le projet. PERMaC, la plateforme que j’ai créée au Havre il y a une dizaine d’année a été sollicitée, ainsi que le Hangar Zéro lui-même, avec toutes les ressources dont il dispose.
La grande chance pour cette démarche de réemploi a été que nous avions un site à proximité, une ancienne halle commerciale désaffectée, qui nous a permis de stocker des matériaux tout au long de l’opération, en cours d’étude et jusqu’à la fin du chantier. C’est d’ailleurs devenu une « cité de chantier », comme le WIP à Caen.
Après la désignation des entreprises, elles ont été toutes invitées à compléter la palette de matériaux. Presque tous les lots ont été concernés, avec plus ou moins d’enthousiasme. Par contre, malgré nos efforts et l’action d’un courtier, le Maître d’ouvrage n’a pas réussi à obtenir son assurance Dommage Ouvrage. Tout a été fait pour l’obtenir, nous y étions presque ! Mais l’assureur demandait une assurance nominative par entreprise, propre à ce chantier. Deux entreprises seulement n’ont pas pu la fournir. Ce n’est pas normal, les assurances ne jouent pas le jeu ! La Ville d’Epinay-sur-Seine se retrouve donc à être son propre assureur sur cette opération.
Suivant des principes bioclimatiques, vous adoptez mur trombe, serre inter-climatique et cheminée solaire. Celles-ci reposent sur les calories du soleil et le réemploi de matériaux, notamment de fenêtres. Le réemploi est-il l’allié de la bioclimatique ? Auriez-vous pu mettre en place ces dispositifs passifs sans réemploi, à partir d’éléments neufs ?
Frédéric Denise | Non ! Sans le réemploi ces dispositifs n’auraient pas été faits : cela aurait été trop cher avec des menuiseries extérieures neuves.
Il y a effectivement une valorisation mutuelle entre une approche bioclimatique passive et le réemploi des fenêtres. Cela se vérifie dans tous mes projets maintenant, depuis la Ferme des Possibles. Les menuiseries de réemploi représentent un gisement énorme, lorsqu’elles sont remplacées lors des rénovations thermiques, elles partent ensuite à la benne ! On peut faire toutes sortes de dispositifs bioclimatiques avec : des espaces tampons, des doubles façades, des murs trombes, des cheminées solaires.
La façade double peau génère un espace tampon, orienté au sud, dans lequel on puise un air moins froid en hiver pour la ventilation naturelle des locaux. Cet air est ensuite réchauffé par l’air extrait à travers un échangeur. C’est le principe du double flux. Sauf qu’ici il n’y a pas de moteur : ce sont les cheminées solaires qui, par effet de serre, permettent d’accélérer le tirage naturel et de vaincre la perte de charge des échangeurs. Le mur trombe utilise également l’effet de serre. Sauf que là il s’agît de chauffer un mur à forte inertie thermique, en BTC, derrière une façade vitrée. L’été on rafraichit se mur avec l’air nocturne, dont il conserve la fraicheur et la restitue dans la journée.
Ventiler
Bien que la ventilation soit partiellement naturelle (une ventilation mécanique complète le dispositif), des gaines et échangeurs en aluminium sont suspendus au plafond de la nef et tranchent avec l’atmosphère douce et chaleureuse du lieu. Comment intégrer ou assumer ces tuyaux démesurés ?
Frédéric Denise | Nous avons choisi de tout montrer. Il s’agît d’une démarche pédagogique, mais également pragmatique. Le bâtiment étant totalement réversible, il est plus simple de laisser tous les réseaux apparents.
Dans le cas de la ventilation naturelle double flux avec récupération de chaleur, cela prend beaucoup de place. L’absence de moteurs, remplacés par les cheminées solaires, est compensée par la grande section des gaines. Suspendues dans le grand volume de la serre, enveloppées dans leur manteau isotherme, les gaines et les échangeurs prennent l’allure d’engins spatiaux, qui détonnent dans leur environnement organique. Le résultat est assez incongru, mais donne à l’ambiance intérieure un caractère unique. La Maison de la Réserve écologique est un objet hybride, expérimental, qui s’assume en tant que tel. D’un autre côté je reconnais que le fait de dire qu’on « assume » est un peu facile… La réalité est qu’entre la charpente de la nef, complexe, le raccordement aux cheminées solaires et la taille des gaines que nous n’avions pas tout à fait anticipées, tout est rentré un peu comme dans une valise trop pleine ! Il faut souligner ici l’importance des études d’exécution, qui auraient dû être menées dès les études et non en cours de chantier. On ne peut pas faire un bâtiment expérimental sans que soit confiée à la maîtrise d’œuvre une véritable mission EXE. C’est l’autre leçon à retenir de cette opération. Mais il n’y a rien à regretter. Nous restons très fiers du résultat.
Organiser
Contrairement aux apparences, ce projet a deux sites : le chantier à proprement dit et trois rues plus loin la « halle du chantier » : une base vie augmentée installée dans un marché désaffecté mis à disposition par la ville. Qu’est-ce que cet espace supplémentaire à la fois vaste et pérenne vous a permis de mettre en œuvre ? A-t-elle facilité l’emploi de matériaux naturels ou réemployés ?
Boris Juillard | Cette halle désaffectée a été une aubaine pour le projet : identifiée dès la phase de conception, elle a permis rapidement de sourcer des matériaux et équipements de réemploi et de les stocker avant même d'avoir finalisé la conception et consulté les entreprises. Dans un premier temps, utilisée comme espace de stockage, elle a permis d'adapter la conception aux ressources, notamment en ce qui concerne les grands ensembles vitrés de réemploi puisque les menuiseries ont été sourcées avant de consulter les entreprises, et que nous avons dessiné le projet et élaboré le dossier de consultation en fonction du gisement sourcé.
Durant le chantier, la halle s'est transformée en partie en atelier de menuiserie pour certaines entreprises qui y ont installé leurs machines et ont pu ainsi travailler les fenêtres sourcées en lien direct avec le chantier. La démarche de réemploi nécessite effectivement pas mal d'ajustements au fil de la réalisation, dans une activité se rapprochant de l'artisanat et qui serait difficilement imaginable, ou tout du moins bien plus chronophage, si elle avait été envisagée dans un atelier loin du chantier.
Durant le chantier, la halle a également servi de base vie et de cabane de chantier, permettant une économie significative en évitant la location d'un modulaire.
Céline Tcherkassky | La halle a aussi permis d’organiser des ateliers et d’accueillir du public en toute circonstance, indépendamment des aléas du chantier. C’est pratique car on a tout sous la main les outils mais aussi les matériaux, on n’a pas à déployer et ranger à chaque fois l’espace pédagogique, Ce ne serait pas si simple sur le chantier. On est aussi beaucoup plus réactif pour les visites qui peuvent s’organiser d’une semaine à l’autre.
Transmettre
Tout au long du chantier, vous avez proposé chaque mois dans cette halle de nombreux ateliers autour de l’écoconstruction. Parmi les publics, des agents (inter)communaux. Or on sait que la formation initiale et l’entretien-maintenance sont deux fronts où l’écoconstruction a encore du chemin à faire. Qu’avez-vous mis en place ?
Céline Tcherkassky | Notre proposition d’organiser des ateliers a été très bien reçue et soutenue par la maîtrise d’ouvrage. Notamment l’élue à l’environnement, Eugénie Ponthier, qui a été très présente dans le suivi de chantier, elle était emballée et a vraiment porté toute la démarche et ses bienfaits. Tout cela était cohérent avec le programme de la maison de la Réserve qui est de sensibiliser et éduquer à l’environnement. La directrice de la maison, Anne Vialatoux, a aussi poussé tous ces sujets de médiation. Tous les supports d’explication ou les jeux qu’on a créés pour les ateliers, elle les réutilise maintenant pour les animations avec les scolaires.
Un bâtiment de ce type coûte un peu plus cher que les bâtiments conventionnels, aussi il y avait un enjeu de sensibilisation et de transmission. Nous voulions briser les aprioris et prêcher la bonne parole.
Les ateliers débutaient par une visite de chantier, puis sous la halle autour de la maquette et enfin autour d’ateliers thématiques renouvelés chaque semaine autour du conte des quatre petits cochons (bois, terre, paille et réemploi). Nous avons organisé 51 ateliers (955 participants en 2023) : le jeudi pour les scolaires (notamment les lycéen·nes d’en-face qui ont suivi tout le projet en venant tous les mois), un groupe le matin, un autre l’après-midi ; le vendredi pour les pros avec aussi deux groupes ; le samedi pour le grand public.
Les ateliers « pro » rassemblaient une quinzaine de personnes sur une demi-journée : un tiers d’agents de la ville (Epinay-sur-Seine), un tiers d’agents de l’interco et un tiers de l’extérieur, essentiellement des architectes et des étudiant·es en archi. Le bâtiment est un prétexte, le chantier est un prétexte, la formation se fait un peu toute seule par les échanges de pratiques et de visions du bâtiment. J’ai trouvé très bénéfique d’avoir des groupes mixtes et de ne pas cloisonner les professions. Ainsi des agents du service marché sont venus pour comprendre comment on adapte les marchés à ce type de construction, mais aussi des DG qui se retrouvent à côté d’agents des services techniques. Il se passe des choses assez intéressantes dans leurs discussions. C’est comme cela que la commande évolue. La directrice et les agents qui occupent le bâtiment sont capables de faire la visite seuls maintenant ! Ils maîtrisent tous les détails du projet et les différents enjeux autour de l’écoconstruction. C’est excellent, à la fois pour la pérennité du lieu et sa bonne utilisation, mais aussi la diffusion de l’écoconstruction. Ces ateliers dépassent donc la question de la maintenance qui ne concerne que deux ou trois agents. Nous avons reçu plus de 150 agents sur la base du volontariat !
Le samedi, on avait pas mal d’habitants qui venaient, certains avec des questions sur l’écoconstruction à titre personnel pour de potentiels travaux dans leur maison. Nous étions un peu archi-conseil à ce moment-là, bien que tout ne soit pas transposable sur un chantier de maison individuelle. En tout cas, les habitants manipulaient le bois, la terre, la paille, et se disaient que ce n’était peut-être pas si impossible de faire des enduits terre chez eux, par exemple.
Approprier
Bien que le public n’ait pas participé au chantier, en quoi ces ateliers participent-ils (ou non) à l’appropriation du lieu ?
Frédéric Denise | L’implication dans les animations pédagogiques, qui ont accompagnées tout le chantier, leur ont permis de s’approprier très tôt le projet. La convivialité de ces moments de travail partagés a beaucoup apporté au concept de bâtiment bioclimatique, qui doit se vivre au quotidien, en phase avec les éléments naturels et les saisons. Cela ne peut pas fonctionner sans cette implication, sans cette convivialité avec la nature.
Céline Tcherkassky | Chez les adultes, je pense que c'était sur les ateliers paille qu'on a eu le plus d'échanges craintifs à propos des rongeurs et des incendies. On a d’ailleurs conçu un jeu de l’oie pour pouvoir poser des questions et avoir les réponses sur les risques réels et les imaginaires, déconstruire les aprioris.
Boris Juillard | Je n’ai pas souvent participé aux ateliers, mais je me rappelle que les gens n’étaient pas toujours étonnés lorsqu’on parlait de terre ou d’enduit. Cela leur évoquait des souvenirs, des choses connues, une maison de famille avec de la terre…
Céline Tcherkassky | Je suis d’accord, il y avait moins d’étonnement sur la terre et encore moins sur le bois. Par contre, il y avait des idées reçues à déconstruire comme « le bois, c’est écologique ». Les ateliers bois interrogeait d’ailleurs davantage la filière pour prendre conscience de ce qu’y se cache derrière une poutre : qu’est-ce qu’une forêt écologique ? comment pousse le bois ? comment est-il récolté et transformé ? etc.
J’étais plutôt mal-à-l’aise au début avec le fait qu’on ne puisse pas réellement faire des choses sur le bâtiment en participatif, mais c’était vraiment très compliqué de mettre en place du chantier participatif qui s’intègre dans des lots, ou alors sur des objets très isolés. On a, par exemple, commencé à faire le remplissage paille avec le public mais on a dû s’arrêter car le clos-couvert n’était pas terminé, impossible de mettre l’isolation à ce moment-là. Le calendrier participatif n’est pas toujours simple à faire correspondre avec les aléas d’un chantier public
Par ailleurs, même si ce sont des techniques courantes, ce sont aussi des techniques ambitieuses. Les artisans ont un savoir-faire et on ne peut pas toujours confier des ouvrages pérennes à des participants néophytes. Il ne faut pas fantasmer là-dessus. Cela peut aussi être infantilisant si on leur donne des tâches annexes, comme les enfants qui écrivent leur nom sur une tasse !
En fin de compte, je ne suis pas sûr que ce soit forcément nécessaire pour se sentir bien dans le lieu ou comprendre son fonctionnement. On a plutôt fait de la découverte et de l’apprentissage, avec beaucoup de manipulation, mais moins de stress pour le public et pour nous, de manière plus détendue, pour laisser place à l’apprentissage, ce qui n’enlève rien à la magie de la découverte… À chaque fois que des participants aux ateliers passaient devant le chantier, ils s’arrêtaient, regardaient, se questionnaient, discutaient. À l’inauguration, il y avait beaucoup de monde, beaucoup de gens qui avaient participé aux ateliers et qui avaient une vraie compréhension du projet. Ils étaient capables de guider les visiteurs…
Questions et édition
Réponses
Frédéric Denise (Archipel Zéro), Boris Juillard & Céline Tcherkassky (Lao Scop)
Iconographie
Archipel Zéro, Lao Scop, Martin Paquot, 11h45 (pour Lao Scop), Ville d’Epinay-sur-Seine