équipement public bois artisanat local métamorphose pédagogie
À Blénod-lès-Pont-à-Mousson, assembler vides et pleins, tradition et expérimentation
Marie-José Canonica Alain Cartignies | 29 novembre 2025
Introduction
qui Cartignies-Canonica, architectes DPLG | Caroline Leloup, architecte associée | Laurent Bonne, Julian Pierre, architectes assistants
quoi Construction d’un collège de 700 élèves
où Blénod-lès-Pont-à-Mousson
quand Études 2002-2003 | chantier 2004-2006
pourquoi Reconstruction du collège
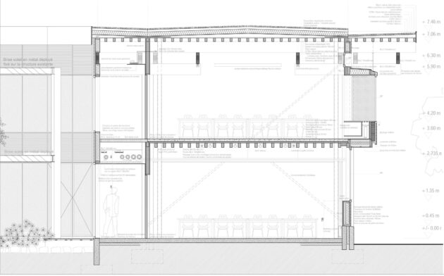
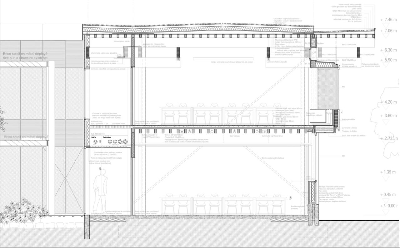
comment Structure poteaux-poutres en bois massif et en bois lamellé-collé de douglas | contreventement assuré par les cages d’escalier en béton | murs intérieurs et façades en structure bois | bardage en mélèze | menuiseries extérieures en pin du Nord | planchers bois-béton | revêtement en caoutchouc | couverture végétalisée
pour qui Conseil général de Meurthe-et-Moselle
avec qui Anglade (structure bois) | OTH Est (ingénierie) | Etico (OPC)
par qui Maddalon (charpente bois) | Socopa (ossature et bardage) | Haas-Weisrock (lamellé-collé)
combien Surface du collège : 6 695 m² SHON | surface des logements : 594 m² SHON | prix : 9 039 463 € HT
Depuis sa livraison en 2006, le collège de Blénod-lès-Pont-à-Mousson constitue un repère pour plusieurs générations d’élèves, d’architectes et d’ingénieurs. Il se caractérise par un jeu d’imbrications fort dans son contexte : de la parcelle à la ville, du grand paysage à son territoire.
Lors du concours, le programme prévoyait la démolition d’un bâtiment de type Pailleron [1] et la construction, sans interruption des cours, du nouveau collège en cœur d’îlot, avec l’usage du bois. Marie-José Canonica et Alain Cartignies ont su fixer la limite d’intervention à un mètre des façades existantes. Le bois vosgien, mis en œuvre selon une trame rigoureuse, a rendu possible une implantation à la fois juste et ambitieuse.
Le bâtiment a reçu en 2023 le label ACR (Architecture contemporaine remarquable), attestant la singularité de l’intervention et de la démarche expérimentale.
Choix d'implantation
Arthur Clément | Vingt ans plus tard, l’intégration du collège Vincent van Gogh dans le tissu de Blénod-lès-Pont-à-Mousson semble aujourd’hui une évidence. Le choix d’implantation résulte pourtant d’un parti pris fort. Quelles motivations vous ont guidé dès le concours ?
Alain Cartignies | Dès le concours, nous avons considéré que l’implantation existante du collège sur la voie principale favorisait son statut institutionnel et structurait l’urbanité du quartier par son étendue. La reconstruction en cœur d’îlot, préconisée par le programme, induisait un morcellement du terrain sans régler la lisibilité de son implantation ni sa visibilité dans le tissu pavillonnaire. À partir de cette exigence, nous avons évalué les surfaces laissées vacantes entre les bâtiments dispersés et voués à la destruction comme des surfaces à occuper : vide et plein s’inversent.

Relation à la parcelle
Avant intervention, quelle est la situation du quartier, de la parcelle et ses relations au contexte urbain et paysager ? Comment avez-vous procédé pour évaluer les surfaces vacantes et leur potentiel à accueillir des éléments du programme ?
Alain Cartignies | Le collège existant de Blénod-lès-Pont-à-Mousson, par sa distribution en étoile autour d’un hall, occupait une grande surface de l’îlot, essentiellement réservée à l’implantation de pavillons donnant sur rue et jardin, et à celle d’un gymnase avec parking. Son implantation sur les deux côtés de l’îlot bordé par des rues constituait une limite signifiante dans ce quartier pavillonnaire homogène. Son architecture, comme son organisation éclatée, était un point de repère pour les habitants et visiteurs du quartier que nous voulions maintenir.
En construisant en fond d’îlot, on déstructurait l’organisation urbaine entre rue et jardin, et ce déplacement rendait l’accès aux différentes fonctions du nouveau collège problématique. Nous avions compris, lors de la conception d’écoles et de collèges, la nécessité de créer des espaces extérieurs signifiants : par leur taille, ils sont déterminants dans la fluidité des déplacements entre intérieur et extérieur, et structurants dans la composition globale du projet, qui peut abriter entre cent et cent cinquante locaux de tailles diverses.
Nous avons toujours en référence la réalisation de l’école primaire de Livio Vacchini à Locarno et la figure du cloître. Inscrire le projet par rapport à son échelle géographique et dans la géométrie de l’îlot est le moyen raisonné d’éviter la production d’espaces résiduels en limite de parcelle, une situation récurrente dans les programmes de collèges. En déconstruisant les bâtiments existants pour libérer des espaces extérieurs, nous pouvions occuper tout l’angle de l’îlot en implantant le collège sur deux limites. On retrouvait ainsi son statut institutionnel, sa clôture sur l’espace public, mais aussi sa fonction de point de repère.
Déconstruction et chantier
Les élèves, enseignants et administratifs ont vu les vides se remplir progressivement, ont pris possession des lieux, puis l’existant a rapidement été déconstruit pour révéler les nouveaux vides. La déconstruction semble avoir été un retournement de situation soudain. Durant le chantier, la relation entre existant et projeté s’est inversée subitement. Comment cette situation atypique a-t-elle été perçue par les usagers ?
Alain Cartignies | La reconstruction du collège dans les vides de l’existant constituait une situation atypique : elle mettait en relation le monde de l’éducation et celui de la construction. Cette promiscuité avec le chantier faisait sens pour les élèves, renforçant le lien entre leur présence au collège et la fabrication du lieu.
Une proximité qui, physiquement, se traduisait par une construction à très faible distance entre ancien et nouveau bâtiment (moins d’un mètre). Cette proposition, quelque peu inédite et audacieuse, était rendue possible par le choix de la construction en bois, comme demandé par le conseil départemental. En construisant en bois, il était possible de concevoir un procédé constructif en filière sèche (préfabrication), à faibles nuisances sonores et liées à la présence d’engins, tout en maintenant le fonctionnement du collège.
La proximité entre le nouveau collège en chantier et les locaux existants avait une valeur didactique : élèves, enseignants et agents constataient de près la progression du chantier et ses modes d’assemblage, de la charpente à la couverture.
Autant d’éléments, sources à la fois de richesses et de contraintes, qu’il faut sans cesse gérer, réguler, adapter. Dans ce temps long, chacun peut découvrir le nouveau collège, se l’approprier avant de le pratiquer spatialement.
Continuité et rupture dans l’espace et le temps.
Le projet repose sur un découpage fin en plan et en élévation. Quel est le système structurel que vous avez développé avec Jacques Anglade ? Quelles logiques constructives, économiques et esthétiques ont orienté cette conception ?
Alain Cartignies | Compte tenu de l’enjeu du projet, qui consistait à construire au plus proche de l’existant, le système structurel choisi faisait appel aux savoir-faire traditionnels de la charpenterie, développés par les entreprises locales. De plus, la recherche de la juste dimension des portées et de leur espacement, en lien avec les locaux du programme, était un moyen de développer la préfabrication, et donc la filière sèche.
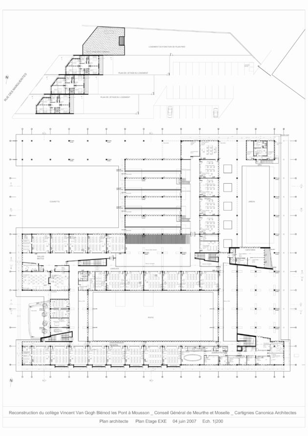
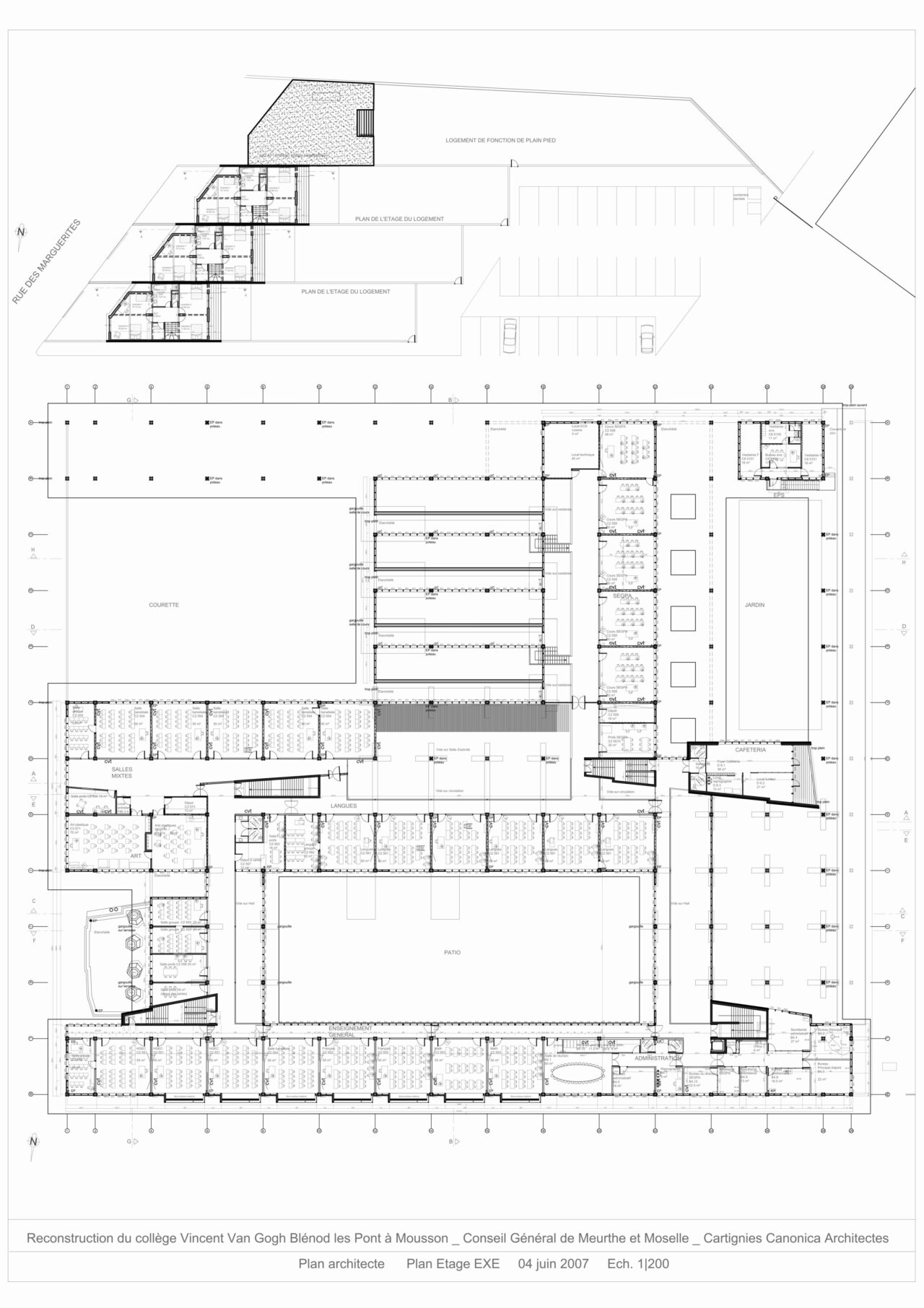
L’ensemble de la construction a ainsi été réglé sur une trame tridimensionnelle de 0,90 m, limitant, dans des sections standard de bois massif, les portées des solives de plancher et des pannes de toiture à 3,60 m. Le module 3,60 × 7,20 m au rez-de-chaussée et 7,20 × 7,20 m pour le R+1, ainsi constitué, reçoit à chaque angle un point porteur formé d’un quadruple poteau de section 13 × 13 cm, assemblé avec ses consoles en atelier, puis transporté et levé sur site, de même que les façades livrées en panneaux de grande dimension.
Cette règle de conception, établie en amont, s’est révélée efficace pour créer des surfaces de 25, 50, 75 ou 100 m², avec leurs variations et exceptions. Elle s’est également avérée confortable pour le second œuvre tels que menuiserie, bardage, habillages intérieurs.
La structure bois et sa préfabrication offrent de nombreux avantages. En contrepartie, elles nécessitent en amont une définition très précise des éléments. Chaque pièce, chaque assemblage est calculé, optimisé, dessiné, fabriqué avec rigueur et justesse, en vue de leur mise en œuvre.
Le bois est un matériau qui se suffit à lui-même, à condition d’en prendre soin tout au long de la chaîne de sa mise en œuvre. Cela exige beaucoup de vérifications et de précautions. Il a également la faculté de se décliner en ligne, surface ou volume [2], et de répondre aux exigences de structure comme de second œuvre, ce qui limite les interfaces dans le cas de matériaux hétérogènes.
Cependant, le matériau bois reste fragile et ses conditions de pérennité dépendent fortement de ses caractéristiques (essence, hygrométrie, qualité) et de sa mise en œuvre. Nous avions prescrit pour le collège des châssis extérieurs bois en vitrage extérieur collé (VEC) afin d’assurer une protection totale du bois. Une prestation non retenue, jugée trop coûteuse ; les châssis ont finalement été réalisés en pin sylvestre, essence durable, sans traitement. Malheureusement, après quelques années, des détériorations ont été constatées, dues à la présence d’aubier en forte proportion, nécessitant le remplacement des châssis, aujourd’hui en bois-alu.
Aucun contrôle n’est à négliger : le bois exige une vigilance constante de tous les acteurs : architecte, ingénieur, entrepreneur.
Structure et préfabrication bois
À partir d’un nombre réduit d’éléments, comment avez-vous traité les questions liées au confort et, plus particulièrement, la surchauffe, l’acoustique, la gestion des flux et l’orientation dans l’espace ?
Alain Cartignies | Les locaux, regroupés selon leurs activités et usages, sont organisés autour d’un espace extérieur spécifique, empreinte laissée par l’édifice démoli. Cour, segpa, patio, jardin ou cour-parvis, vus depuis les salles et les circulations, constituent des repères pour se situer dans l’ensemble. Quatre cages d’escalier, implantées aux points cardinaux, viennent conforter cette lecture spatiale.
Leur géométrie et leur couleur métaphorique participent à l’orientation : bleu pour le nord et l’hiver, rouge pour le sud et l’été, vert pour l’est et le printemps, jaune pour l’ouest et l’automne. Ces teintes identifiables agissent comme points de repère.
Les espaces sont conformes au cahier des charges, mais leurs proportions varient selon le nombre d’usagers et les flux qu’ils engendrent. Cette exigence volumétrique, liée au confort des élèves et enseignants, hiérarchise la composition du plan et de la coupe.
La construction bois, par sa nature, favorise le confort thermique, acoustique, tactile et olfactif. Ces qualités ont été renforcées par des dispositifs architecturaux et techniques : planchers mixtes bois–béton limitant les bruits d’impact, plafonds constitués d’un solivage dense apparent surmonté de panneaux isolants acoustiques, sols en revêtement de caoutchouc coulé, et toiture végétalisée avec débords.
Artisanat et charpenterie
L’échelle de production, la répétition et les assemblages peu conventionnels semblent porter une réflexion sur le travail artisanal et les procédés industriels. Quels rôles ont joué les charpentiers dans ce projet ?
Alain Cartignies | La construction bois permet la préfabrication de nombreux éléments en atelier et d’affranchir la construction des aléas climatiques. De plus, contrairement à d’autres matériaux comme l’acier ou le béton, les assemblages sur le chantier restent possibles même par températures négatives.
Concevoir la mise en place d’éléments structurels manipulables, assemblables à l’atelier comme sur chantier, a orienté nos recherches formelles et structurelles, notamment à travers la production de maquettes. La mise au point d’un poteau unique, capable de supporter deux pièces en encorbellement superposées et orthogonales, permettait un assemblage par empilement de poutres orientées dans différentes directions. Le chantier devenait ainsi un vaste puzzle de montage et d’assemblage, moins exposé aux intempéries et proche des savoir-faire traditionnels du charpentier.
Les charpentiers ont évidemment joué un rôle essentiel, par leur expertise et leur maîtrise technique, dans la reconstruction du collège Vincent-van-Gogh. La connaissance de leur métier est indispensable : à titre d’exemple, le choix de préconiser la mise en place des pannes de toiture par empilement plutôt que dans un même plan s’est avéré très favorable pour absorber les écarts dimensionnels liés au chantier.
Outils de conception
Les maquettes semblent avoir été des outils importants pour le projet. Pouvez-vous nous en parler ?
Alain Cartignies | La maquette a toujours été un outil privilégié pour tous les projets de notre agence, non pas comme un moyen de représentation, mais comme un outil de conception, au même titre que le dessin. À travers la répétition et le changement d’échelle, elle permet d’évaluer, de tester, de modifier, d’ajuster.
C’est aussi un excellent support de communication entre les différents intervenants du projet.
Mémoire du bâti
Le collège existant, construit dans les années 1970, incarne un mode de construire et des conditions d’exercice aujourd’hui contestées. Le nouveau collège en garde néanmoins les traces, par la conservation de certains portiques et par son implantation même. Quelle posture avez-vous tenue vis-à-vis de ce bâti et de sa mémoire ?
Alain Cartignies | La démolition ne pouvait être remise en question, compte tenu de l’obsolescence de la structure et de ses conditions d’habitabilité. Cependant, son insertion urbaine et son système constructif retenaient toute notre attention.
Le point de vue urbain a structuré l’idée d’édifier le nouveau collège dans les vides laissés entre les cinq bâtiments distribués en étoile par un hall. D’un point de vue structurel, cette approche confortait la faisabilité d’une déconstruction après reconstruction.
La conservation d’un portique en acier dans le grand patio relevait davantage d’une opportunité d’aménagement que la trace visible de l’ancien collège. Face aux salles de lecture, cette structure accueille aujourd’hui des plantes grimpantes et favorise la présence d’insectes, prolongeant ainsi les activités pédagogiques du patio liées à la nature et la biodiversité. Longtemps négligé comme lieu de retrait et de support pédagogique, cet espace fait aujourd’hui l’objet d’un nouveau projet.
La critique majeure que l’on peut adresser aux collèges des années 1970 concerne sans doute le manque de relation entre espaces intérieurs et extérieurs. Ces derniers étaient souvent résiduels, sans affectation clairement définie. La construction du nouveau collège fut l’occasion de remédier à ce manque, en qualifiant, par la géométrie, l’ambiance et l’aménagement, chaque lieu issu de la déconstruction de l’existant :
- La linéarité de la contre-allée des bus, en façade sur rue ;
- La cour minérale de service, les ateliers SEGPA ;
- Le calme du grand patio et de la structure métallique de l’ancien collège ;
- La terrasse-jardin de la demi-pension.
Le projet s’ancre dans son territoire tout en convoquant d’autres imaginaires : architectures vernaculaires et références au modernisme notamment. Quelles images avez-vous souhaité convoquer et quel dialogue avez-vous établi entre local et universel ?
Alain Cartignies | Les conditions d’exercice et les réglementations ont fortement transformé la manière de construire, tant dans la temporalité que dans les exigences. Les outils, la technologie et les savoir-faire évoluent et se transforment, sans pour autant effacer le passé ni l’immensité des acquis.
Par les modèles et références convoqués, l’architecture devient visible et lisible. Par la confrontation entre les règles de composition et la matérialité, le projet prend sens : « Une architecture proche », mettant en avant les valeurs contextuelles, d’usage et de construction.
Vingt ans après
Vingt ans après, avez-vous eu connaissance de détournements, évolutions, désordres, etc. ? Des choix techniques ou constructifs se sont-ils révélés plus fragiles ou robustes qu’imaginé ?
Alain Cartignies | De l’esquisse à la réception, le projet n’a pratiquement pas fait l’objet de modifications. Comme pour tout bâtiment, la maintenance et l’entretien manquent parfois de moyens. Face à ce constat, le choix du bois s’est avéré pertinent. Vingt ans après, la structure, les façades, cloisons et plafonds sont toujours en bon état.
À notre connaissance, les casiers des élèves ont été déplacés plusieurs fois, passant du foyer intérieur au préau extérieur. Les caillebotis en bois au sol ont été remplacés par du béton, la contre-allée pour les bus supprimée et des clôtures ajoutées, mettant les façades du collège à distance du public.
Le grand patio, longtemps négligé quoiqu’apprécié des utilisateurs, fait aujourd’hui l’objet d’un projet de requalification dont nous avons la charge.
Marie-José Canonica | Nous sommes allées à Blénod-lès-Pont-à-Mousson après presque vingt ans d’occupation. Nous avons constaté que le vandalisme sur la façade sur rue (jets de projectiles sur les vitrages) a conduit le Conseil général de Meurthe-et-Moselle à supprimer la contre-allée pour les bus et à installer une clôture grillagée avec haie.
De plus, la mise en place de menuiseries avec vitrage et parties pleines, ainsi que le découpage des bow-windows en trois parties, ont modifié le caractère de la façade (grande taille des bow-windows, proche de celle des HLM). Plutôt que de comprendre le problème de vandalisme, le Conseil général a préféré le supprimer, mettant ainsi l’institution à distance de la rue.
À l’intérieur, le bâtiment est très bien entretenu. Le patio, avec sa végétation spontanée, reste agréable, c’est une véritable pièce extérieure !
Bilan, enseignements
Aujourd’hui, quel regard portez-vous sur ce projet ? A-t-il fait évoluer votre manière de faire de l’architecture ?
Alain Cartignies | Comme tout projet, le collège Vincent-van-Gogh reste un prototype, une expérimentation, un espace de connaissances où se confrontent conception et réalisation, qui dans leur alternance constituent les bases de notre discipline et de notre métier.
« Projeter un édifice – édifier un projet ».
Questions
Arthur Clément
Réponses
Marie-José Canonica, Alain Cartignies
Iconographie
Cartignies Canonica Architecture, Philippe Ruault
Edition
Alissa Wolff
[1] Dans les années 60, en réaction à la pénurie d’établissement scolaires pour les enfants du baby boom, le gouvernement favorise la construction neuve avec la politique d’« un collège par jour ». Dans des délais très courts et avec une économie tenue, des milliers d’établissements sont construits suivant des systèmes constructifs industrialisés. Ce type de bâtiments à structure métallique, dits Pailleron, fait référence au collège Édouard-Pailleron à Paris dont l’incendie en 1973 a causé la mort de vingt personnes.
[2] La structure est contreventée par les planchers, toitures, panneaux de façades et cages d’escaliers. L’emploi de diagonales a été évité. « Et puis la croix de Saint-André n’est-elle pas à l’origine un instrument de torture ? » ANGLADE Jacques, Séquences Bois, n° 146 « Spécial 30 ans », automne 2024.